※部屋によって詳細が違う場合があります

戻る

  • 神大生専用
  • 男子専用
  • 女性専用
  • 大学生協オリジナルマンション
  • 神戸大学生協管理
  • フロントオートロック
  • 防犯カメラ
  • 宅配BOX
  • 駐輪場
  • TVモニター付インターフォン
  • 室内洗濯機置き場
  • 風呂トイレ・ セパレート
  • ウォシュレット
  • 家具付き
  • 無料ネット

新学期住まい紹介特設会場のご案内

POINT

閑静な住宅街のおしゃれなメゾネットタイプ♪ 2口コンロ・独立洗面台!ミニコープ徒歩1分

費用一覧

家賃 63,000円
管理費・共益費等 000円/月
保証金/敷金 50,000円
礼金 150,000円
その他入居時の費用
保険

基本情報

エリア 王子公園周辺
住所 〒657-0817 兵庫県神戸市灘区上野通2丁目3-3
最寄り駅 阪急神戸本線六甲駅 徒歩15分
最寄バス停:五毛 徒歩3分
竣工・改装(築年月) 2019年
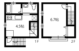
間取タイプ 1DK
構造・規模 木造2階建メゾネットタイプ 全2室
専有面積 29.81㎡

設備

インターネット環境 NTT(戸建プラン) 入居者負担 
コンロ加熱種別 IH 
その他 男子専用 

新学期住まい紹介特設会場のご案内

HOME

TOP