※部屋によって詳細が違う場合があります

戻る

  • 神大生専用
  • 男子専用
  • 女性専用
  • 大学生協オリジナルマンション
  • 神戸大学生協管理
  • フロントオートロック
  • 防犯カメラ
  • 宅配BOX
  • 駐輪場
  • TVモニター付インターフォン
  • 室内洗濯機置き場
  • 風呂トイレ・ セパレート
  • ウォシュレット
  • 家具付き
  • 無料ネット

新学期住まい紹介特設会場のご案内

POINT

水道筋近く生活至便。広いお部屋。コンクリート打ちっぱなしのお洒落な外観。

費用一覧

家賃 35,000-40,000円
管理費・共益費等 5,000円/月
保証金/敷金 0円
礼金 100,000円
その他入居時の費用
保険 生協保険に加入要

基本情報

エリア 王子公園周辺
住所 〒657-0832 兵庫県神戸市灘区岸地通4-1-23
最寄り駅 阪急神戸本線王子公園駅 徒歩7分
JR神戸線 摩耶 徒歩5分
水道筋3丁目バス停 徒歩3分
竣工・改装(築年月) 1985年
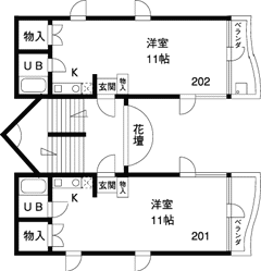
間取タイプ 1R
構造・規模 RC造 4階建 全3室
専有面積 23㎡

設備

インターネット環境 J:COM 利用料無料(1G) 
コンロ加熱種別 ガス 
その他 男女不問  
 

新学期住まい紹介特設会場のご案内

HOME

TOP